How to Measure a Room
If you don’t have architectural drawings from an architect or draftsperson and we are unable to visit your property, don’t worry. We will show you how to measure your space properly and help you draw a basic floor plan with these few tips.
What you need to measure your space:
- A4 paper 
- Measuring tape 
- Pen 
- Ruler to help draw a straight line 
- A second person to help you, if you have a large space 
Step 1: Drawing the floor plan
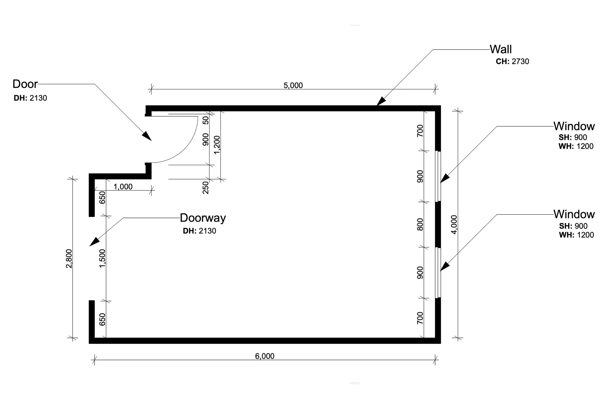
When you are drawing a floor plan you will need to include all walls, doors, windows and door ways. Use a ruler to help draw a straight line, but don’t worry about the measurements yet. See below for an example of how a basic floor plan drawing should look like.
Step 2: Overall measurements
You will first need to take overall measurements of the space so you can ensure every element adds up in the end. Do this by taking a measurement in mm or m, on the inside of the room. The plan below shows what an inside overall measurement looks like.
Step 3: Measuring the details
Measure all the doors, windows and doorways. Don’t worry about including door and window architraves. Measure from from where actual window and door openings start and end. Double check that all the detailed measurements add up to the overall measurement from Step 2 so that you know you’ve measured correctly.
Step 4: Measuring height
It’s also important to take the all the height measurements of each element.
Door height (DH): measure vertically from the floor to the top of the door. 
Window sill height (SH): measure vertically from the floor to the bottom of the window. 
Window height (WH): measure the window itself, from the bottom to the top of the window. 
Ceiling height (CH): measure vertically from the floor to the ceiling (easiest to do next to a wall)
These measurements can be written next to each component on the floor plan.
Once you’re done with the floor plan, take a picture or scan the drawing and send it through to us so we can get started on the project.
 
          
        
       
             
             
             
             
            